| Prijs | € 350.000,- k.k. |
| Type object | Woonhuis, eengezinswoning, twee onder een kap woning |
| Perceeloppervlakte | 262 m² |
| Woonoppervlakte | 93,2 m² |
| Aanvaarding | In overleg |
| Status | Verkocht |
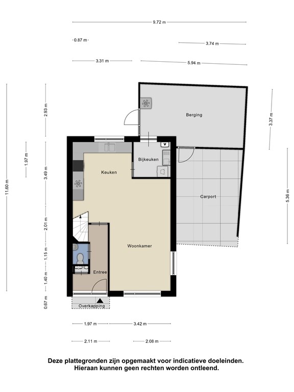
In het kort: twee-onder-een-kap – vier slaapkamers - label A - bijkeuken - ruime schuur – carport - nette tuin. Deze leuke twee-onder-een-kap woning met een carport, ruime aangebouwde schuur (19 m²) en vier slaapkamers staat in een rustige buurt. Op het dak liggen 9 zonnepanelen. Zuidhorn is een aantrekkelijk, groen dorp om te wonen. Het heeft een ruim aanbod aan winkels, diverse scholen en sportvoorzieningen. Groningen is in 10 minuten met de trein bereikbaar. Indeling: Begane grond: Overkapping, entree/hal, toilet, woonkamer met open keuken voorzien van inbouwapparatuur en een praktische bijkeuken met toegang tot de schuur. Eerste verdieping: Overloop, drie slaapkamers en badkamer met douche, wastafel en toilet. Tweede verdieping: Overloop, bergruimte en slaapkamer. Buitenruimte: Netjes onderhouden voor- en achtertuin. Naast de woning de carport met een ruime oprit. In de achtertuin twee terrassen.
| Referentienummer | 00238 |
| Vraagprijs | € 350.000,- k.k. |
| Status | Verkocht |
| Aanvaarding | In overleg |
| Aangeboden sinds | Donderdag 13 februari 2025 |
| Laatste wijziging | Dinsdag 15 april 2025 |
| Type object | Woonhuis, eengezinswoning, twee onder een kap woning |
| Soort bouw | Bestaande bouw |
| Bouwperiode | 1990 |
| Dakbedekking | Dakpannen |
| Type dak | Zadeldak |
| Isolatievormen | Dubbel glas Volledig geïsoleerd |
| Perceeloppervlakte | 262 m² |
| Woonoppervlakte | 93,2 m² |
| Inhoud | 397 m³ |
| Oppervlakte overige inpandige ruimten | 18,9 m² |
| Oppervlakte gebouwgebonden buitenruimte | 20,6 m² |
| Aantal bouwlagen | 3 |
| Aantal kamers | 5 (waarvan 4 slaapkamers) |
| Aantal badkamers | 1 (en 1 apart toilet) |
| Ligging | Aan rustige weg In woonwijk |
| Type | Achtertuin |
| Hoofdtuin | Ja |
| Staat | Normaal |
| Energielabel | A |
| Warmtebron | Gas |
| Bouwjaar | 2011 |
| Combiketel | Ja |
| Eigendom | Eigendom |
| Warm water | CV-ketel |
| Verwarmingssysteem | Centrale verwarming |
| Badkamervoorzieningen | Douche Toilet Wastafel |
| Tuin aanwezig | Ja |
| Heeft schuur/berging | Ja |
| Kadastrale aanduiding | Zuidhorn F 4181 |
| Perceeloppervlakte | 262 m² |
| Omvang | Geheel perceel |