Beschrijving
Te Huur: Winkelruimte in Zuidhorn.
Deze winkelruimte biedt volop mogelijkheden voor een nieuwe, aantrekkelijke invulling. Met de juiste formule kan dit pand – net als voorheen de slagerij – opnieuw uitgroeien tot een echte publiekstrekker in het centrum. De winkel beschikt over een glazen pui over de volledige breedte van het pand, wat zorgt voor uitstekende zichtbaarheid en veel daglicht. Het totaal verhuurbaar vloeroppervlak bedraagt circa 135 m².
De winkel is gelegen tussen sterke buren zoals een bakker en een kaaswinkel. In de directe omgeving bevinden zich daarnaast bekende formules als Albert Heijn, Aldi, Poiesz, HEMA, Kruidvat, Ter Stal en DA Drogist, aangevuld met diverse lokale ondernemers en modezaken. Iedere vrijdagmiddag vindt de markt plaats op het Rode Plein met een ruim aanbod aan (verse) producten.
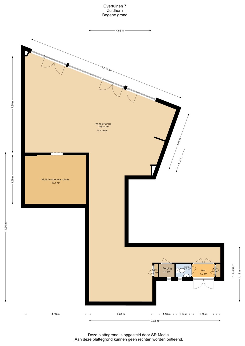
Indeling:
INDELING:
Winkelruimte, berging/multifunctionele ruimte, meterkast, bezemkast, toilet, achteringang. Voor de indeling verwijzen naar de plattegrond.
Locatie:
Gelegen aan de drukbezochte looproute tussen de Overtuinen en de Dorpsvenne, biedt deze locatie uitstekende zichtbaarheid en toegankelijkheid in het centrum van Zuidhorn.
Zuidhorn is niet alleen een prima plek om te winkelen, maar ook een gewilde woonlocatie. Met de bouw van nieuwe woningen in de komende jaren, groeit het aantal inwoners gestaag.
Parkeren:
Het centrum heeft uitstekende parkeervoorzieningen op meerdere parkeerplaatsen rondom het winkelcentrum. Het centrum beschikt over twee parkeergarage en parkeerplaatsen aan de weg. Het betreft een gratis parkeervoorziening met een blauwe zone.
Aanvaarding:
In nader overleg.
Neem contact met ons op voor meer informatie en om een bezichtiging te plannen.
Havinga Makelaardij | Uw makelaar voor wonen en werken
0594 - 500476