Beschrijving
In het kort:
sfeervol gerenoveerde woning – jaren 30 – grote schuur met veel mogelijkheden – groot perceel – midden in het dorp
Goed onderhouden, sfeervolle en lichte jaren 30 woning. Naast de woning staat een grote multifunctionele schuur met bijgebouw. Dit bijgebouw mag ook bedrijfsmatig of voor een maatschappelijke voorziening worden gebruikt.
Op eigen terrein veel parkeerruimte.
Kortom, een unieke kans!
De woning staat middenin het actieve dorp Boerakker, dichtbij de A7 Groningen-Drachten. In Boerakker is een basisschool en kinderopvang. Achter de woning is een speeltuintje.
Voor de boodschappen liggen Leek en Marum op korte afstand.
Boerakker is een populair dorp voor woningzoekenden.
Indeling:
Begane grond:
Entree/hal, open keuken, eetkamer met erker, woonkamer met schuifpui naar achtertuin, achterhal, wasruimte, badkamer, opkamer met trap naar verdieping en een aangebouwde berging.
De begane grond is voorzien van vloerverwarming.
Eerste verdieping:
Overloop en drie slaapkamers.
Achterzijde:
Aan de achterzijde is een berging aangebouwd.
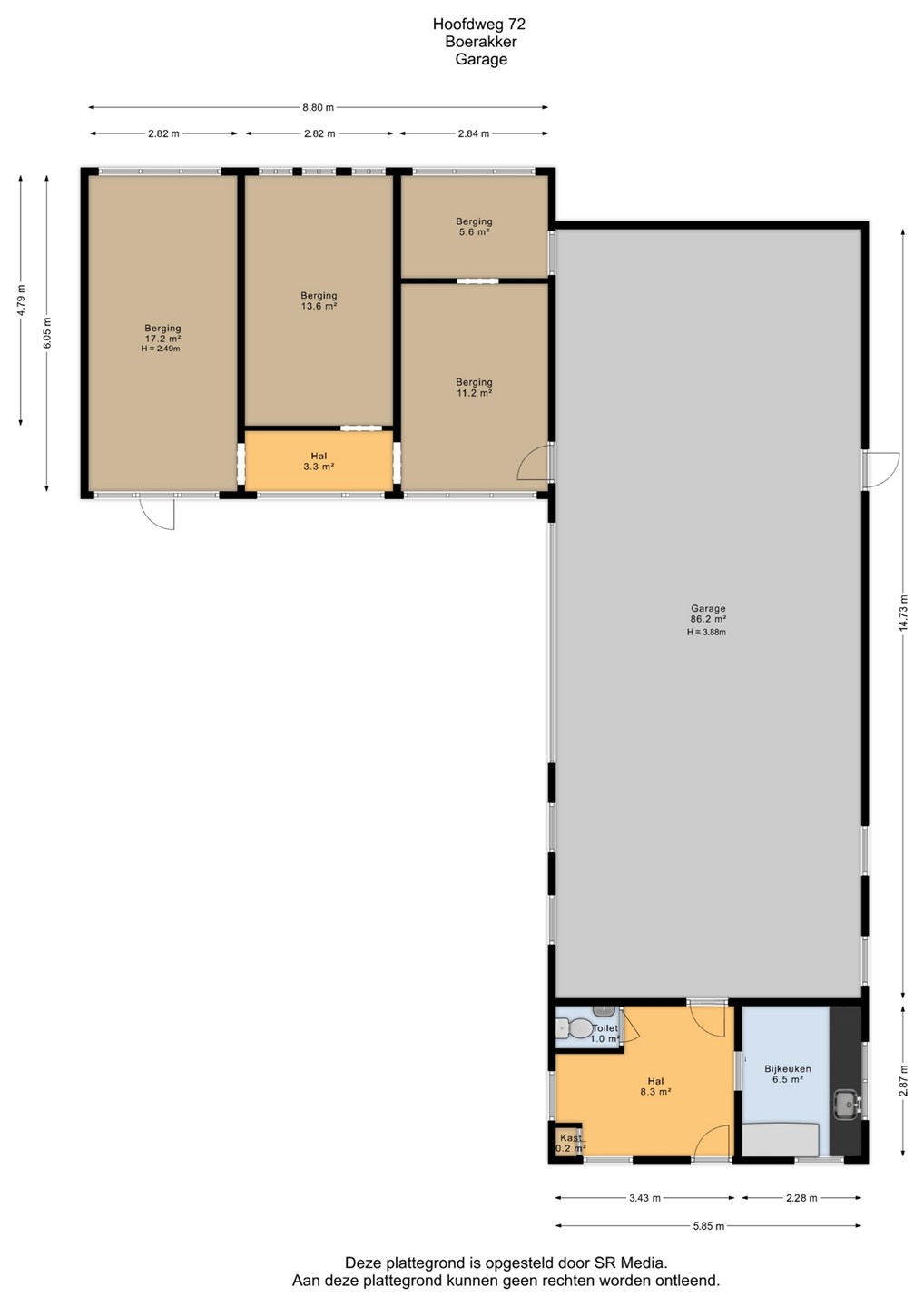
Schuur:
De vrijstaande schuur is 103 m² groot. Voorzien van een toilet en een aanrechtblok. Aan de zijkant zit een grote overheaddeur.
Deze schuur biedt tal van mogelijkheden voor bedrijfsmatig gebruik, opslag, creatievelingen en klussers.
Aan de schuur vast is een houten bijgebouw van 53 m² die nu als berging wordt gebruikt. Op de schuur liggen 14 zonnepanelen.
Buitenruimte:
Aan de voorzijde is het terrein grotendeels bestraat en voorzien van parkeervakken. Dit is eigen terrein en kan uiteraard ook anders worden ingericht.
Aan de achterzijde een besloten tuin.
Opmerkingen:
- Vanaf 2020 is de woning gerenoveerd.
- Begane grond vloerverwarming.
- 14 zonnepanelen bj. 2021
- HR++ glas
- De bestemming van het totaal is wonen. Op het deel van de schuur is aangegeven “functieaanduiding gemengd-1”, dit betekent dat er een maatschappelijke voorziening mag of een bedrijf uit categorie 1 of 2